We use cookies to ensure our site functions properly and to store limited information about your usage. You may give or withdraw consent at any time. To find out more, read our privacy policy and cookie policy.
Manage Cookies
A cookie is information stored on your computer by a website you visit. Cookies often store your settings for a website, such as your preferred language or location. This allows the site to present you with information customized to fit your needs. As per the GDPR law, companies need to get your explicit approval to collect your data. Some of these cookies are ‘strictly necessary’ to provide the basic functions of the website and can not be turned off, while others if present, have the option of being turned off. Learn more about our Privacy and Cookie policies. These can be managed also from our cookie policy page.
Strictly necessary cookies(always on):
Necessary for enabling core functionality. The website cannot function properly without these cookies. This cannot be turned off. e.g. Sign in, Language
Analytics cookies:
Analytical cookies help us to analyse user behaviour, mainly to see if the users are able to find and act on things that they are looking for. They allow us to recognise and count the number of visitors and to see how visitors move around our website when they are using it. Tools used: Google Analytics
Share Shaw Park Livable Community on FacebookShare Shaw Park Livable Community on TwitterShare Shaw Park Livable Community on LinkedinEmail Shaw Park Livable Community link
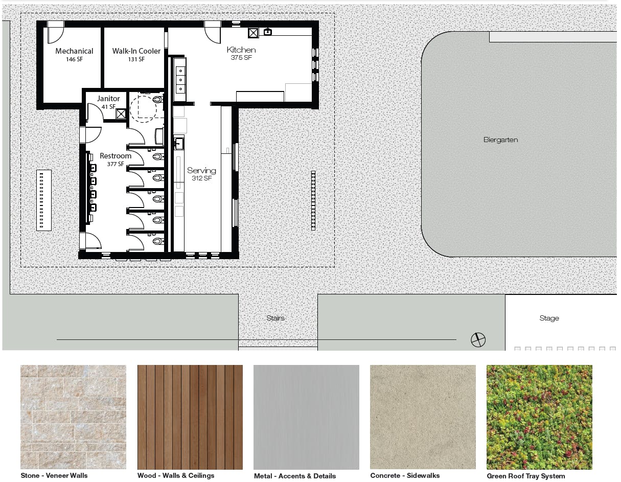
As part of the ongoing community conversation and the City's efforts toward the Livable Community Master Plan, the area between the Shaw Park Aquatic Center and Shaw Park Tennis Center is being rebuilt with an emphasis on flexible spaces for year-round use.
On Monday, January 26, 2026, the design team delivered a formal presentation and shared renderings and project boards of the site plan. These renderings took direction from the results of community surveys and feedback.
The priorities of the Shaw Park Livable Community space include:
Leverage public spaces for gathering and connection
Improve safe, accessible walking and biking infrastructure
Promote sustainability and equity in public spaces
Reinforce Clayton's role as a regional recreation hub
Images of the planned Shaw Park space, as well as the presentation documents, are available online through the links on this page.
As part of the ongoing community conversation and the City's efforts toward the Livable Community Master Plan, the area between the Shaw Park Aquatic Center and Shaw Park Tennis Center is being rebuilt with an emphasis on flexible spaces for year-round use.
On Monday, January 26, 2026, the design team delivered a formal presentation and shared renderings and project boards of the site plan. These renderings took direction from the results of community surveys and feedback.
The priorities of the Shaw Park Livable Community space include:
Leverage public spaces for gathering and connection
Improve safe, accessible walking and biking infrastructure
Promote sustainability and equity in public spaces
Reinforce Clayton's role as a regional recreation hub
Images of the planned Shaw Park space, as well as the presentation documents, are available online through the links on this page.